Previous (2016)

Whitby

In Living Memory

2017

We started 2017 with Yorkshire Water finishing off their work to upgrade the town's West side water supply while upgrades to the gas network in town were underway in the area of Brunswick Street & Bagdale, upgrading aging metal pipes to plastic ones. The last phase of work to the water pipes was in the West Cliff area with work around Crescent Avenue complete by early February. The area of Silver Street was the next phase & Back St. Hilda's Terrace was closed to traffic at the Flowergate Cross Roundabout. The gas works in the town centre meant 3-way traffic lights were necessary from 4th January at the junction of Victoria Square & Brunswick Street with the bottom of Spring Hill closed to traffic, even though the work wasn't taking place on that road initially - I think 4-way traffic lights would have been too much for traffic flow to contend with. 2-way traffic was necessary along the top section of Spring Hill to maintain access to properties, the police station & the hospital. This was phase one of the work which took 4 weeks to complete. The next stage of the work was in Brunswick Street itself which meant the bottom section of the road was closed & so 2-way traffic was necessary along Brunswick Street. This second phase took 7 weeks to complete with Brunswick Street completely re-opened by the beginning of March. Work was then taking place and forced closure of Back St. Hilda's Terrace. Following this, work was started by Yorkshire Water on replacing an underground reservoir dating from 1910 near Castle Road. The new reservoir, complete in Summer 2018 would hold 6 million litres of treated drinking water. The first phase of work was to demolish the retaining wall and remove the existing reservoir, part of a trio of similar reservoirs at the Castle Road site. The project manager for Yorkshire Water said at the time that the new tank would have a serviceable life of 80 years. A temporary extension of the 30mph zone & a 40mph speed limit was necessary while the work was carried out with the 30mph zone extended to beyond Ewe Cote & a new 40mph zone to beyond the junction with Barker Lane. Mott Macdonald Bentley were the main contractors undertaking the work.
The area was levelled and a concrete wall was erected in May 2017 which would enclose the reservoir. In November 2017, work was on-going to screen the top of the reservoir which was finished with light-coloured pebbles so it blended in with its surroundings.

    08/01/2017    08/01/2017

Above left: The gas works at the bottom of Brunswick Street; Right: The chaos on the road with 3-way traffic lights & closure of Spring Hill junction

12/02/2017    12/02/2017    12/02/2017    12/02/2017

Above from left: The new 40mph speed limit from Cross Butts Roundabout to the extension of the 30mph limit; The entrance to the extended 30mph limit at the top of Castle Road near Ewe Cote;
The site of the works behind the retaining wall about to be demolished; Looking up Castle Road towards the site on the right

26/02/2017    26/02/2017

Above left: The site entrance looking East; Right: Looking up Castle Road with the old section of wall removed

30/03/2017    30/03/2017    30/03/2017

Above from left: Approaching the site from Castle Road - retaining wall demolished; Centre: The site looking up Castle Road; Right: Looking across the site from Castle Road

21/05/2017    21/05/2017    21/06/2017    21/06/2017

Above left: The site looking North; Left centre: The concrete wall being erected; Right centre & Right: Exactly 1 month later - more progress on the perimeter wall

06/08/2017    29/10/2017 

Above from left: Perimeter wall coming along nicely; Cover going on

  10/12/2017    10/12/2017    10/12/2017    21/01/2018

Above from left: The reservoir with pebble screening on top; New footpath beside the site on Castle Road; Small section of new footpath to the South of the site; Work continues into the new year

06/05/2018    06/05/2018

Above from left: The site of the reservoir looking very much finished looking up Castle Road & down Castle Road respectively

09/06/2018    09/06/2018    09/06/2018    09/06/2018

Above from left: The site from the lower part; The site from the higher part showing the cover on top of the reservoir;
The entrance gate to the site; Looking down the perimeter fence bordering Castle Road showing the various access covers

From 9th January, Meadow fashion shop in Skinner Street was closed for around 3 weeks while important structural work was undertaken to the interior of the building. Also around the start of this year, the owner of the bike shop of Skinner Street at the time sold the business which resulted in a change of name from "Dr. Cranks Bike Shack" to "Dr. Sprockets Bike Shack" after the shop front received a lick of paint.

26/02/2017

Work on erecting a solid fence all round the perimeter of a site which had been granted planning permission for housing on land belonging to The Order of the Holy Paraclete got underway in December 2016, taking more than a month to fully enclose the site. Previously to this a small fence existed on the site which was installed in 2010 replacing a gorse hedge.

11/12/2016    11/12/2016

Left: The new fence looking towards Four Lane Ends; Right: The old fence with the new fence framework behind

08/01/2017    08/01/2017    08/01/2017

Above left to right: From opposite the entrance to Sneaton Castle Farm towards Four Lane Ends; From Manor Close towards Castle Road; From Manor Close towards Four Lane Ends
Below left & right: Looking up High Stakesby Road towards Castle Park; The fence posts all round the edge of a field to the West of High Stakesby Road

08/01/2017    08/01/2017

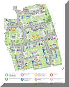
In late January, work lasting 3-years began as the fields were dug ready for a housing development to be built, for Tees Valley Housing by S-Harrison & Thirteen Group with the building company being Kier. The homes on the 16-acre site would be a mixture of properties for sale, shared ownership & rent & originally included plans for a 2-storey care home be built on the site to the North-east corner where farm buildings of Sneaton Castle Farm previously stood as well as 190 units of housing. The care home part of the plan was shelved and the area would be used instead for more housing. The new development 'Chancel Meadows' would feature a mixture of 2, 3 & 4 bedroom properties with a number of bungalows also to be built. 2 vehicular entrances were to be created to the site with an informal play area to the West of the development. The initial plans for the development and those of a little later differed. This was because the north-west end of the site was separated and was not part of Thirteen Group housing association but instead were private homes for sale through the estate agent Hendersons. The development was to be called Castle Fields after Sneaton Castle just to the West of this. Site plans are available below, to view in hi-res, click the relevant thumbnail. The site plan on the left was the original site plan for Chancel Meadows. The one in the centre was the revised site plan for Chancel Meadows and the one on the right is the site plan for Castle Fields.

Original Chancel Meadows site plan    Revised Chancel Meadows site plan    Castle Fields site plan

Above left: Site Plan with High Stakesby Road to the right & Castle Road to the top; Right: Plans showing the plot numbers with the care home now vanished after this part of the plans was shelved

05/02/2017    05/02/2017    30/03/2017    27/04/2017

Above from left: From St. Andrew's Road showing the site ready for development; The farm buildings near Castle Road belonging to Sneaton Castle Farm;
The site from Guisborough Road; Work progressing towards Sneaton Castle Farm

The first bricks were laid in early June as work on the first houses was started near to the junction with Runswick Avenue, which appeared mostly built by early July.

17/06/2017    17/06/2017    09/07/2017    09/07/2017   

Above Left & Left centre - 17th June: First houses going up near to the junction with Runswick Avenue; Right centre & Right - 9th July: First house almost complete, opposite Runswick Avenue

19/08/2017

Above: The view of the site from Guisborough Road

The first phase of houses with an expected completion date around March 2018 were released mid-September through Bridgfords. The first few houses were by this time complete, including plots 1-5 & plots 35-38, with plots 6-11 being completed shortly after. Electricity works were taking place at the end of September lasing a few days at High Stakesby Road between the junction of St. Andrew's Road & Four Lane Ends resulting in a partial road closure for traffic exiting the roundabout onto High Stakesby Road.

17/09/2017    17/09/2017    28/09/2017

Above from left: Plots 1-5 complete with plots 35-38 also complete to the right; The site from Guisborough Road;
Electricity works at the junction of High Stakesby Road & Four Lane Ends resulting in a partial road closure

15/10/2017    15/10/2017

Above from left: The site as viewed from St. Andrews Road junction with High Stakesby Road; The bottom of the site where earth works have been taking place

19/11/2017    19/11/2017    19/11/2017    19/11/2017  

Above left & Left centre: From St. Andrew's Road looking into the far reaches of the site; Right centre & Right; From the junction of Runswick Avenue looking South over the site towards what will be the entrance road

 19/11/2017    19/11/2017    19/11/2017    19/11/2017  

Above from left: The rear of plots 5-1 (left to right) with the rear of plots 38-35 to the extreme left; The front of plots 1-5 with plots 35-38 to the extreme right; The front of plots 1-5; Plot 32 with the roof on

Below from left: Plots 11-6 complete with parking areas being laid; The rear of plots 11-6 with back gardens being prepared

 19/11/2017    19/11/2017

Roads, pavements & street lighting were in place by late December 2017 with a pavement also added up the side of the development on High Stakesby Road.

  14/01/2018    14/01/2018        14/01/2018

Above left & centre: The entrance to the site with road & pavements now in place; Right: Looking into the site with road all the way to the far edge of the site with building work on all those plots on-going

Work started into the new year of 2018 on demolishing part of the old stone wall, separating Castle Road from the land owned by the Holy Paraclete, the owners of Sneaton Castle Centre, which was to be closed for good in December 2018 and the land used for further housing. The wall was altered to make another entrance into the development. A pedestrian crossing was installed on High Stakesby Road in April 2018 before the show homes could be opened.

21/01/2018    21/01/2018

Above from left: The back of Sneaton Castle Farm & the remaining part of the old stone wall; Looking through the gap created by the demolition of the wall towards the first plots of the Chancel Meadows development

11/03/2018    11/03/2018

Above from left: The development now stretches up towards Sneaton Castle, viewed from Guisborough Road; The development from Guisborough Road looking towards High Stakesby Road

15/04/2018    15/04/2018    15/04/2018

Above from left: The entrance to the development from High Stakesby Road with the show homes to the left; A view which will soon be impossible from High Stakesby Road; Pedestrian crossing work begun

Below from left: The new entrance to the development from Castle Road; A look into the development from the Castle Road entrance; The undeveloped land towards Sneaton Castle from the entrance to the development

15/04/2018    15/04/2018    15/04/2018

More road-work misery lasting 3 weeks arrived on 23rd April, resulting in High Stakesby Road from the junction of St. Andrew's Road to Four Lane Ends garage being closed with traffic only allowed in from the roundabout. The pavement was made wider round the outside of the roundabout onto Mayfield Road where the tactile kerbs were replaced. A second lane was added to High Stakesby Road for traffic turning left onto Mayfield Road, with the right hand lane for traffic going straight ahead or right. The same road closure happened again here in early October 2018, lasting only a few days. A pedestrian crossing was installed in the week leading up to the start of these works just North of the junction of the new development on High Stakesby Road & the give-way lines were also marked at the entrance to the new development. The crossing wasn't put into use until late May however, to coincide with the opening of the developments show homes, which opened to the public on 26th May. By this time the site was really taking shape with lots of plots fully complete and a lot more underway. A street name of 'Convent Way' was allocated to the main road into the site with Sandstone Grove being the first left from that road.

24/04/2018           20/05/2018

Above from left: The partial road closure looking towards Four Lane Ends; The new footpath created looking towards Four Lane Ends roundabout;
The new footpath round Four Lane Ends roundabout towards Mayfield Road; Work complete, new left turn lane & wider pavement

24/04/2018    27/05/2018

Above from left: The new pedestrian Crossing in place also showing the new give-way lines at the entrance to the new development; Crossing now in operation

27/05/2018    27/05/2018    27/05/2018    27/05/2018

Above from left: The entrance to the development along the newly-named Convent Way with the show homes on the left; Looking along Convent Way towards what will be plot 31 with a parking area to the extreme right; Looking down Sandstone Grove with plots 12-21 complete; Sandstone Grove from Convent Way
Below from left: Plots 22-34 of Sandstone Grove complete; Plots 58-52 (near to far) complete with plots 60 & 59 behind with plot 87 visible in the far distance; The electricity sub station on Convent Way;
What will be plots 130 & 131 from outside plot 37 looking towards Sneaton Castle Farm (yet to be demolished)

27/05/2018    27/05/2018    27/05/2018    27/05/2018

Demolition began at Sneaton Castle Farm in early June and was basically complete by the end of June.   

09/06/2018    09/06/2018    09/06/2018    09/06/2018

Above from left: Sneaton Castle Farm building during demolition from High Stakesby Road; The entrance to Sneaton Castle Farm;
The entrance to Sneaton Castle Farm showing the shell of a farm building; The rear of the farm viewed from the newly-created entrance from Castle Road to Chancel Meadows

        28/07/2018    28/07/2018

Above from left: The last section of Sneaton Castle Farm remains as seen from opposite the former entrance; The last section of the farm to be demolished as seen from the junction of High Stakesby Road & Castle Road; Sneaton Castle Farm gone; Showing the area where the barns stood

28/07/2018    28/07/2018    28/07/2018    28/07/2018

Above from left: Convent Way street sign erected; Foundations for plots 137-135 laid; The long building in the distance will house plots 127-124; Street signs for Sandstone Grove in place

28/07/2018    28/07/2018    28/07/2018    28/07/2018

Above from left: Looking across Convent Way from Sandstone Grove; Looking up Convent Way towards the road junction; Plots 39-47 of Convent Way; Plots 58-52 complete with plots 49 & 48 just visible beyond

28/07/2018    28/07/2018

Above from left: First row behind white house is plot 70, behind is plot 71 & behind that is about plot 80

09/09/2018     09/09/2018    09/09/2018    09/09/2018

Above from left: From outside the show homes looking at what will be the gable end of plot 135; Looking North-west from the show homes towards plots 132-134;
From outside plot 39 looking North-west with plots 100-103 nearing completion; From outside plot 39 with the road in the distance eventually serving plots 94-88

By November a number of roads were in place with houses popping up all over the place, a number of these by this time were complete. The road into the site was called 'Convent Way', the first on the left was 'Sandstone Grove'. The next on the left was Jet Close, with Ammonite Close off this road & Easter Close near to the entrance of Jet Close.

25/11/2018    25/11/2018    25/11/2018

Above from left: Plots 132-134 underway at Convent Way; Parking area for Convent Way with plots 147-144 behind at a higher level; Plots 139-135 now up to first floor level

25/11/2018    25/11/2018    25/11/2018    25/11/2018

Above from left: Plots 128-131 without outer bricks; Looking back down Convent Way at plots 47-35; Easter Court with plots 94-88 complete; Plots 124-127 almost complete

25/11/2018    25/11/2018

Above from left:  Plots 161-58 in the early stages with Castle Road behind; Plots 100-103 complete

25/11/2018    25/11/2018    25/11/2018

Above from left: Looking into Jet Close, Plots 76-83 complete at Jet Close; Plots 84-87 also complete

25/11/2018    25/11/2018    25/11/2018    25/11/2018

Above from left: Looking into Ammonite Grove with plots 52-58 on the left, plots 59-61 ahead & the gable end of plot 70 in red brick to the right;
Plots 71-75 of Jet Close with the entrance to Ammonite Grove; Plots 48-51; Looking down the footpath between Convent Way (left) & Ammonite Grove (right)

24/02/2019    24/02/2019    24/02/2019

Above from left: Plots 95-99 complete; Plots 124-127 now almost complete; Plots 161-158 in the distance with plots 121-126 to the right

By April 2019 some residents of Ammonite Close had moved in and two former show homes were sold off, plots 3 & 4 of Convent Way. A separate planning application was also successful to guarantee the builders of this site more work nearby. Castle Fields would see a further 46 houses built off Castle Road with a further 14 to be built on land previously occupied by Sneaton Castle Farm. Old people's accommodation would also be built. Whitby Town Council & the developers S. Harrison could not come to an agreement over the names of 2 new roads within the site so Scarborough Borough Council had to step in to decide. The suggested names for the roads off Convent Way to the South of the site included Claremount Drive which was suggested by Whitby Town Council, relating to an old lodge that once existed on the site prior to Sneaton Castle but S. Harrison wanted Castlefields Drive after the name of that development. The other names in the hat were Howe Close as a map from 1895 shows a road bearing that name nearby, and Smugglers Close, which the developers both suggested. The town council however wanted it called Turnpike Close as the area was known by that name in the past. The town council got their way in the end with Scarborough Council very fairly saying it shouldn't be up to them to choose a name for a Whitby street so they decided to go with what the town council originally decided. So it was to be Claremount Drive & Turnpike Close which were originally chosen by a vote at a council meeting.

07/04/2019    07/04/2019    07/04/2019

Above from left: Rear of plots 139-135 complete; Plots 128-131 complete along Convent Way; Plots 143-140 - plot 143 has scaffold up

07/04/2019    07/04/2019

Above from left: Plots 4 & 5 now sold off for private ownership; Plots 161-158 to the right distance almost complete

07/04/2019    07/04/2019    07/04/2019    07/04/2019   

Ammonite Close - Above from left: Looking into Ammonite Close; Plots 67-70; Plots 62-65; Plots 62-65 to the right with plots 61 & 60 to the left with cream rendering

A children's play park was also added to the development with this work starting towards the end of Summer 2019. It was situated near Jet Close & Easter Court. New drainage was put in place near the bottom of Convent Way & Jet Close & Easter Court were tarmacked in September 2019.

15/09/2019    15/09/2019    15/09/2019       

Above from left: The front of the houses off Convent Way facing High Stakesby Road with parking area behind now almost complete; Easter Court & Jet Close tarmarcked; Children's play area off Easter Court strated

25/04/2020    25/04/2020    25/04/2020

Above from left: The bungalows of the site now complete from High Stakesby Road; The site from the site of Sneaton Castle Farm, now gone;
The site looking towards Sneaton Castle from the corner of High Stakesby Road

Work was well underway on the Castle Fields development by Autumn 2020.

28/11/2020    28/11/2020    28/11/2020    28/11/2020

Above from left: Plots 158-161 now fully complete showing the rears of plots 166 & 167 through the gap in the houses; Children's play park complete;
The first houses complete of Castle Fields showing plots 5-1 with plots 4 & 5 still with scaffold on; Behind plots 1-5 showing foundations for more dwellings with the Chancel Meadows development visible in the distance

Friday 13th January really did bring with some bad fortune for the town as strong North-westerly winds coincided with a 5.8M Spring tide at 4:30 in the afternoon making the Harbour spill over onto surrounding streets. Road closures & pedestrian cordons had been put in place for the high tide which came in the early hours of the morning but that time they weren't necessary. But, as the wind speed increased throughout the day & with the tide higher than the early morning tide, the road closures were necessary this time. The road closures included Sandsend Road, Church Street & Pier Road. This was extended to the junction with Windsor Terrace & the whole of town was basically on lock down until early evening when the water levels started to recede. Fire engines were drafted in & based at the Leisure Centre car park & RNLI & Mountain Rescue workers were also in the town helping out where they could. Pedestrian safety was a priority for the authorities & a cordon was put in place part way along Pier Road & at the bottom of Khyber Pass during the highest point of the tide. The steps from the Pier end of The Cragg were also closed off, prohibiting people from coming out of The Cragg into the abyss. The worst hit areas were Church Street near Billy Wilsons & New Quay Road, leaving both roads completely submerged & half of the roundabout with Langborne Road. The flood wasn't as bad as that of December 2013 however, but the waves pounding against the Piers were arguably worse. The town was better prepared this time too, with sandbags all over the place, including at the top of West Pier slip way, the point of them I'm not quite sure but they were soon moved by the sheer force of the water. Waves of probably 30-foot were crashing against the shore all afternoon & East Row beck was more like an open sea! Robin Hood's Bay also took a battering with waves crashing up the slipway there also. The Trillo's ice cream kiosk which was permanently situated on Pier Road near the bandstand was lifted off its base and moved down the road in one wave. The damage was assessed in the coming days and the kiosk was soon repositioned. Wetherspoons got a little damping in their reception area but nothing near as bad as 2013 and they were only closed for a couple of hours. Daylight revealed the true extent of the damage however with the sea wall between Whitby & Upgang without most of its metal railings with the rest of them bend out of shape. A large rock which was part of the sea defences had been lifted up on to the path of the sea wall, showing the true force of nature. Other debris which was strewn all over the place revealed the sheer force of nature & just how quickly a small quiet town can turn into utter chaos!

Below is a series of photos showing the chaos the high tide & strong winds caused. Photos taken between 4:20-4:50pm on 13th January.

           

Above from left: Waves crash over the piers & extensions; The base of Trillo's ice cream hut; The ice cream hut now in front of the bandstand; Swing Bridge straddling a very full harbour

           

Above from left: The rough seas engulf the East Pier; Tate Hill Pier almost submerged; The Cragg looking North with the cordon across; Pier Road looking very foamy

           

Above from left:From St. Ann's Staith towards Swing Bridge; Swing Bridge from St. Ann's Staith; From Swing Bridge looking North; Swing Bridge with Kiddies Corner completely submerged

           

Above from left: From near the Dolphin Pub towards Dock End; Swing Bridge from near the Dolphin Pub; New Quay Road towards Langborne Road; Closer to Langborne Road from New Quay Road

           

Above from left: The road closure from near the front of the Railway Station; New Quay Road roundabout; Dock End looking very full indeed; Looking North from the Swing Bridge

Above: Angel Yard from Baxtergate

           

Above from left: Tin Ghaut car park full of debris; Tin Ghaut slip way from Church Street; The back of The Fleece pub & pontoons; Swing Bridge from Church Street car park

The big clear up operation began the next day with Pier Road remaining closed so contractors could work without interruption. Railings had been damaged near to the bandstand & at various points on the sea wall, with boulders from the sea defences moved up onto the top of the wall & plastic drainage pipes exposed in the cliff & cracked. A steel hut which had been placed on the sea wall for use by contractors had been so battered by the waves, the side of it was bent inwards. A lot of areas of water repellent sealant had also come out of the cracks in the concrete on top of the sea wall & a rubbish bin had been smashed to smitherines.

The following photos were taken on the morning of 15th January.

       

Above from left: Trillo's ice cream hut lifted from its base & moved about 20 foot; The base of the ice cream hut with the actual hut behind; Railings damaged near the bandstand

   

Above from left: Rocks moved across the sea wall from the sea defences; Damaged plastic drainage pipe from the cliff

           

Above from left: Damaged railings at various points along the sea wall

           

Above from left: Railings strewn over the other side of the sea wall; The base of the cliff has taken a battering; Water repellent sealant removed from the cracks in the concrete of the sea wall

       

Above from left: A temporary steel container has taken a real battering, bending the side of the container inwards; Rocks moved about at the base of the cliff; Stones scattered all over the path from the base of the cliff

Improvement work was complete early in the year at Whitby Leisure Centre, managed by Everyone Active on behalf of Scarborough Borough Council. The £150k worth of upgrades saw the front of house area spruced up, a turnstile entry system introduced & the dance studio improved.

Demolition work got underway at the flats at St. Peter's Road in the New Year after the previous tenants had been re-housed in the newly-built flats off Helredale Gardens at Rohilla Way. The three blocks of flats would be demolished and replaced by flats & houses, with a cul-de-sac created to the left of St. Peters Road, where the triangle of grass previously was, giving access to a parking area. The first flats to be demolished was the terrace on the right of St. Peter's Road looking down with St. Peter's Court behind. The bulldozers moved in on 16th January & by 18th only the last flat remained upright for another few days. Two blocks of flats & two terraces of houses were built, with a single bungalow and a further four semi-detached properties.

Below is a series of photos of the flats from various angles showing them firstly as they appeared during the lengthy battle by local residents to save the flats from demolition, followed by some photos after the last residents moved out. Then finally we look at the buildings in their last weeks of life before they were flattened to the ground at long last.

The photos below were taken on 19th June 2014

           

            

                           

The photos below were taken on 11th December 2016 - All residents relocated to Rohilla Close

                       

The photos below were taken on 8th January 2017 - Hedges & tree removed

           

       

Demolition under way!

19/01/2017    19/01/2017    19/01/2017

Above from left: The last 2 flats of the terrace still standing with no roof; The pile of rubble including baths & sinks; Looking down St. Peter's Road at the empty space

28/01/2017    28/01/2017

Above left: The second phase of flats demolished; Right: The land where the first phase of flats were situated levelled

05/02/2017    05/02/2017    05/02/2017    05/02/2017

Above from left: The last section to be demolished looking towards Helredale Road from St. Peter's Road; The empty space between St. Peter's Road & St. Peter's Court;
Footpath from Helredale Road closed; Looking up the playing field into the empty space

The area was levelled and the next phase of demolition was the terrace of flats behind Helredale Road. This was complete by 27th January. The ground was levelled on both sides of the road and drains installed. As contractors were working digging trenches on the afternoon of 24th February they struck a mains electricity cable leaving the houses nearby with no electric for almost 8 hours! Thankfully no-one was hurt.

           

Above from left: From St. Peter's Road towards Helredale Road; Towards St. Peter's Court, drains are being put in place and foundations laid;
From the pathway to St. Peter's Court looking up St. Peter's Road showing the foundations for the new dwellings; From St. Peter's Court towards St. Peter's Road

30/03/2017    30/03/2017

Above from left: The area between St. Peter's Road & St. Peter's Court; Right: The area between St Peter's Road & Helredale Road

16/04/2017    16/04/2017    16/04/2017    16/04/2017

Above from left: From St. Peter's Road towards Helredale Road; From St. Peter's Court bungalows towards St. Peter's Road;
From St. Peter's Court towards St. Peter's Road; Towards St. Peter's Road from the bottom of the site

11/05/2017    11/05/2017    11/05/2017    11/05/2017

11/05/2017

Above from top left: Towards Helredale Road from St. Peter's Road; New kerbs laid for a new road junction to the new development looking towards Helredale Road; The houses behind St. Peter's Court looking North; The houses behind St. Peter's Court looking South;
Bottom: The new bungalow from St. Peter's Court almost complete

08/06/2017    08/06/2017    08/06/2017    08/06/2017

Above Left & Left centre: The houses nearest St. Peter's Court making progress; Right centre & Right: The houses nearest Helredale Road also making progress

20/07/2017    20/07/2017    20/07/2017

Above from left: St. Peter's Road towards Helredale Road showing the entrance road into the new development; The new access road into the development looking towards Helredale Road;
The dwellings bordering St. Peter's Court are almost up, seen here from the front lining St. Peter's Road

By August 2017, work was really making progress at the development with some of the dwellings by now been rendered.

26/08/2017    26/08/2017    26/08/2017    26/08/2017

26/08/2017    26/08/2017

Above from top left to bottom right: The block backing onto Helredale Road; A block complete looking towards Helredale Road;
The same block looking towards Helredale Road also showing foundations for 2 more dwellings; A row of houses backing onto St. Peter's Court almost complete;
Bases for more dwellings looking towards St. Peter's Court; The sole bungalow from St. Peter's Court

24/09/2017    24/09/2017    24/09/2017

Above from left: The houses backing onto St. Peter's Court almost complete except the furthest plot; The flats backing onto Helredale Road looking massive; The lone houses near Helredale Road complete

Into October roofing work was started on the structure of flats.

15/10/2017    15/10/2017    15/10/2017    15/10/2017

Above from left: The flats with the roof in the process of being put on; Another dwelling being built near to the rear of Helredale Road; 4 houses being built next to the flats; Empty space with St. Peter's Court behind

           

Above from left: The houses now with driveways with St. Peter's Court behind; Roof now going on the 3-storey flats;
The entrance into the site towards the rear of Helredale Road; The houses towards the bottom of the site with the rear of Helredale Road behind

The structure for the flats was complete by early December 2017, at a similar time the driveways were laid to the front of the houses at the other side of St. Peter's Road.

    10/12/2017    10/12/2017    10/12/2017    10/12/2017

Above from left: First houses to be completed now have driveways in front of them; The houses nearest the top of St. Peter's Road; The flats now complete; Houses behind Helredale Road

    14/01/2018    14/01/2018    14/01/2018    14/01/2018

Above from left: The row of houses nearest Helredale Road; The flats & row of houses nearest Helredale Road; The block of flats near 24 St. Peter's Road;
The houses at the rear of the site near Helredale Road as seen from the field near East Side Community Centre

11/02/2018    11/02/2018    11/02/2018

Above from left: Fence erected at the southern end of the flats bordering 15 St. Peter's Road; The flats with perimeter wall built; The houses nearest Helredale Road now complete;

    11/02/2018    11/02/2018

Above from left: The flats near 24 St. Peter's Road last to be complete; Gable end of the flats near 24 St. Peter's Road

    11/03/2018    11/03/2018    11/03/2018    11/03/2018

Above from left: The houses nearest Helredale Road; The house near Helredale Road with the access road to the rear of the properties;
The flats near St. Peter's Court almost complete; The flats & houses near St. Peter's Court from the rear

A small road was laid between the flats & houses backing onto Helredale Road & parking was created behind. The development was complete by May 2018, a welcome change from the grotty flats that stood there before.

15/04/2018    15/04/2018    15/04/2018

Above from left: The flats backing onto St. Peter's Court very nearly complete; The flats at the other side of the road backing onto Helredale Road; The houses backing onto Helredale Road with a small road to the left

Below from left: The 4 houses on their own near Helredale Road; The parking area at the rear of the flats with rear of Helredale Road to the right

15/04/2018    15/04/2018

After completion...

09/09/2018    09/09/2018    09/09/2018

Above from left: The flats from the top of St. Peter's Road & houses on the left of the road; The rear of the flats with entrances & parking area; The rear of the houses on the left of St. Peter's Road
Below from left: The secluded semi-detached houses near the flats' parking area; The bungalow near St. Peter's Court; The houses & flats on the other side of St. Peter's Road looking up the road

09/09/2018    09/09/2018    09/09/2018

 

Work lasting around 2 weeks by Yorkshire Water was underway in mid-January to replace a valve in the pumping station at Endeavour Wharf. The work had to be undertaken through the night when the system was in less demand.

22/01/2017

Work at the pumping station by Yorkshire Water

Work was started sometime in January at HSBC in Baxtergate as they leased off former office space of the bank's premises to a new clothing shop called One Edge. The shop was open by late May.

31/01/2013    12/02/2017   

Above left: HSBC & Harbour View cafe before changes; Right: Soon after work began

        16/04/2017    17/06/2017

Above from left: The front taking shape; The new clothes shop One Edge open

A rear extension to the adjacent Harbour View cafe was also being built to the New Quay Road frontage. The extension was complete sometime in July.

11/03/2017    11/03/2017    16/04/2017    17/06/2017

Above from left: The rear extension to the cafe; A closer view of the rear extension; The rear extension is slow-moving

26/08/2017

Above: Extension complete sometime in July

A number of improvements to highways around the town were completed between February & April as part of the agreement by Sirius Minerals in connection with the new potash mine due to be sunk near Sneaton. The highways work all paid for by Sirius Minerals included introducing tactile paving at junctions to improve safety for pedestrians at the following locations; Holmstead Avenue; Pembroke Way, Abbot's Road, East Whitby School, Eskdale Road, Fairfield Way & Enterprise Way. A new pedestrian crossing was installed just South of the junction with Abbot's Road on the A171 Helredale Road, replacing the uncontrolled crossing point - a traffic island. The traffic island was removed at the beginning of March & tactile paving was installed on the inner road of Helredale Road adjacent to the pedestrian crossing. The lights were broken after being in operation for only a day, but were back in operation the following day.

        12/02/2017    12/02/2017    11/03/2017    11/03/2017

Above from left: Helredale Road uncontrolled crossing before a signalised crossing was installed looking down Helredale Road & Up Helredale Road;
A month later - traffic island removed; Tactile crossing point installed on the inner part of Helredale Road

30/03/2017    08/04/2017    08/04/2017

Above from left: Crossing at Helredale Road almost complete, railings installed on the footpath between Helredale main road & side road; Crossing in operation by early April;
Pedestrian approach from the service road of Helredale Road

12/02/2017    12/02/2017   

Above from left: Work underway at Abbot's Road with its junction with Helredale Road to install tactile paving slabs; Fairfield Way & Stainsacre Lane junction before any work was undertaken;
Work complete installing lowered kerbs & tactile paving at Holmstead Avenue with its junction with Guisborough road

A right turn lane was also added on the A171 into the B1416 towards Sneaton & a similar right turn lane was added from the B1416 into the mine site. Work for this was started in February with the re-positioning of a dry stone wall at the entrance to the mine site to allow for road widening. The work at the junction of the A171 & B1416 was complete on schedule by 7th April however the mine site junction took a little while longer. A number of weeks later, the tarmac surface at the junction of the A171 & B1416 was ripped back up and re-laid with asphalt chippings. Someone appeared to have got that wrong as the markings were in place & everything before it was ripped up.

12/02/2017  11/03/2017  11/03/2017  11/03/2017  11/03/2017

Above left: A171 looking South at the junction with the B1416 where a right turn lane was about to be added; Left centre: Widening the road on approach to the junction of A171 & B1416 from Whitby;
Centre: A171 made wider South of junction with B1416; Right centre: B1416 with A171 towards Scarborough to the right; Right: Towards Whitby at the junction of A171 & B1416

08/04/2017    08/04/2017    08/04/2017

Above from left: The lay-by area now gone; The junction looking towards Whitby; The junction looking towards Scarborough

12/02/2017    11/03/2017    11/03/2017    11/03/2017

Above from left: The B1416 at the location of the new mine entrance before the right turn lane was added; Left centre: Dry stone wall repositioned to allow for road widening;
Right centre; The mine site entrance, formerly a steel gate; Right: Dry stone wall repositioned to allow for road widening, looking towards Scarborough

08/04/2017    21/06/2017

Above from left: The mine site entrance to the left looking South showing the extra width of the road; The mine site entrance looking along the B1416 towards the A171 nearing completion

Work was on-going at the site of the mine through the year with screening of the site taking place and a 2-mile-long clearway added on the B1416. A number of road signs warning of no Sirius traffic were also erected around the area.

19/08/2017    19/08/2017

Above left: The mine site showing a drilling rig; Right: Looking South along the B1416 at the start of the clearway

Work at East Row Beck to install a footbridge over the beck just North of the road bridge got underway in February. This would see the main road bridge have its pavements removed & replaced with cobbles to discourage pedestrians from using the bridge once the new footbridge was open. The bridge was lifted into place on 1st March and work followed this to tie it in to the existing pavement. The work was carried out by Hall Construction Services with help from Wilf Noble.

19/02/2017    19/02/2017    19/02/2017

Above from left: The East bank of the beck being worked on; The West bank of the beck being worked on; The road bridge as it was

07/03/2017    07/03/2017    07/03/2017

Above from left: The new footbridge in place on the approach from Whitby; The bridge from outside The Hart Inn; Showing the end of the bridge which is not yet joined to the bank side

30/03/2017    30/03/2017

Above from left: Pavement surface laid to deter pedestrians from using road bridge; Footbridge approaches complete with fencing & central bollard to deter cyclists

Also around this time, just up the road work was underway nearby at Sandside Cafe which would involve extending the cafe to the East also providing an outside seating area. The work was complete in time for the Summer season by early June.

19/02/2017    21/06/2017

Sandside Cafe during & after completion of work to build an extension & outside seating area to the East of the cafe

Work started in February on the erection of a building to house public conveniences in Pier Road which would also utilise space in an existing building adjacent to it. The purpose of the project was to replace the aging public conveniences at the foot of Khyber Pass. The connection of the electricity supply to the new building, situated near the bandstand meant Pier Road was shut to traffic for 2 days at the beginning of March. A 5-foot-high wall was demolished in early March to make way for the building, taking almost 4 months to complete with the new toilets opening to the public at the end of June. The opening of these toilets coincided with the acquisition of other public conveniences in Whitby by Whitby Town Council from Scarborough Borough Council. These included this new toilet block as well as toilets at Ruswarp, West Cliff, Market Place & New Quay Road. The contract for the maintenance of the toilets was awarded to Danfro who would maintain the toilets through their Sani Rent package with the borough council making a payment of £25,000 as part of the takeover deal which saw the pay-on-entry toilets at New Quay road automated with a turnstile system pu in place.

28/06/2016    28/06/2016    28/06/2016   

Above from left: The former building housing public toilets at the foot of Khyber Pass showing the entrance to the Men's toilets down the steps;
The rear of the building facing Khyber Pass; The entrance to the Women's toilets from Khyber Pass

11/03/2017    30/03/2017    08/04/2017    08/04/2017

Above from left: The site of the new building with a wall removed; The building taking shape; The building just 1 week on as seen from the foot of Khyber Pass; The rear & side of the building from the Bandstand

27/04/2017    17/06/2017

Above left: Work almost complete on the new building to house the public toilets; Right: Glass doors on the building

02/07/2017    02/07/2017

Work complete  - Above left: The rear of the building showing the disabled toilet door behind the wall; Right: The entrance to the toilets

Whilst on the subject of public toilets, the toilet block at Eskdaleside in Sleights was closed and ripped apart which saw two disabled accessible toilets added with access from the front of the building and the men's entrance to the right of the building removed. A fence was erected to stop access to the rear of the building but a gate was installed to the left of the building.

21/06/2017    21/06/2017    28/09/2017

Above from left: The former entrance to the ladies' toilets was to the rear of the left side wall; The former entrance to the gents' toilets was at the rear of the right side wall; Almost complete - former Gent's door blocked up

Back in Whitby, during the last week in February a footpath was being installed between Waterstead Lane & Waterstead Crescent, the only other alternative footpath prior to this was the raised one at the other side of the road. This meant that people wishing to get to Waterstead Cresccent or indeed Whitby Court care home from the direction of Fishburn Park, could now do so without having to walk in the road, crossing before the raised footway.

26/02/2017    26/02/2017

Above: The new footway created between - Left: Waterstead Lane & Right: Waterstead Crescent

Work at the B1460 from the Chubb Hill/Upgang Lane roundabout meant access to the roundabout from Spring Vale was prohibited while underground utility works were undertaken for a couple of days in mid-March. New signage was installed at Whitby bus station stating buses only and a maximum speed limit of 5mph. Signs were also erected on Whitby's New Bridge above the railway line to warn motorists to call a number to inform the train operator should any damage to the bridge be incurred due to a motor vehicle accident.

Pavement resurfacing works were carried out throughout Whitby where the pavements were coated with a layer of tarmacadam. The road of Cliff Street was also re-surfaced in early April with the whole road and pavements dressed in a very black-looking attire. The road was closed to vehicles and temporarily to pedestrians while this work was carried out.

Work was on-going by March at 13 North Promenade which saw the bungalow demolished before being replaced with a 2-storey house. The building was pulled down which left a gap for a short while until the new building began taking shape. This was almost built by August 2017 with rendering taking place by October. The building & exterior work was complete by May 2018.

18/07/2015    07/03/2017    07/03/2017    11/03/2017

Above from left: 13 North Promenade as it was before work began; The building with no roof as seen here in early March; Looking into the empty shell with the Cricket Ground to the rear; 1 week later - Bungalow gone!

17/06/2017    05/08/2017    28/09/2017    29/10/2017

Above left, centre & right: Steady progress being made in June, August & September respectively; Rendering complete

10/12/2017    27/05/2018

Above from left: Almost complete; Complete by May 2018

Pandemonium shop on Flowergate closed its doors for good in early March after many years of selling gothic items in the town. Another business soon moved into the building however as by late June an antique shop The Golden Jackdaw had moved in. Nearby, Flecks Boutique at 15 Flowergate changed names to The Wedding Shop around this time. The main target audience of the shop remained the same. New signage at Whitby Bus Station was erected in March stating Buses Only & 5mph. Work was being undertaken at the Cross Butts roundabout near the Park & Ride site, with the kerbs on the approach from Guisborough & on the roundabout itself between that exit & the B1460 junction, making the road wider. Towards the end of March work was being carried out at Whitby's lifeboat station which saw the pontoon replaced meant the all-weather lifeboat was transferred to a temporary location on the opposite side of the harbour near the fish quay whilst the work was being undertaken.

30/03/2017    02/07/2017    30/03/2017    30/03/2017

Above from left: Pandemonium closed down...; ...And becomes The Golden Jackdaw; New signs at Whitby bus Station stating Buses Only & 5mph; Cross Butts roundabout minor alterations

A family-run business which was forced to close in around 2012 due to ill health was about to disappear from the town after the building had been left as it was since closure. Whitby Fish Stores stood empty on the corner of Baxtergate & Wellington Road for around 5 years. The shop name was removed during early April & fascia paint was stripped. Also around this time, LiDL had a new sign added to the entrance to its car park, replacing a smaller one installed in 2013. A new business, Cod Roe Fish Mongers was open by mid-June.

07/03/2017    16/04/2017    17/06/2017

Above from left: Whitby Fish Stores premises as it was in March 2017; Paint being removed; Cod Roe Fish Mongers opened mid-June

Work was also underway at Highfield Road Recreation Ground where previously 2 disused tennis courts stood, which would be replaced by an eventual total of 41 dwellings comprising of houses & flats. Planning permission for a residential development at this site was first granted in 2007. The first block to be built comprised of 4 houses with the second, third & fourth block containing 3 houses each. The first block was numbered odd numbers from 35-41

08/04/2017    08/04/2017    08/04/2017

Above from left: Looking East along Highfield Road at the foundations for some of the new dwellings; Looking West along Highfield Raod;
Access to the site compound as seen from Derwent Road with Highfield road through the gap to the right

11/05/2017    11/05/2017

Above left: The first dwelling to be started is making progression; Right: Showing the full length of the site

09/07/2017    09/07/2017    09/07/2017

Above from left: The first houses to be worked on coming along nicely; Looking back at the first houses to be built from the end of the road; Foundations for the other houses nearer the end of the road in place

   

Above from left: The end of the site loooking towards Derwent Road; The end of the site

       

Above from left: The dwellings furthest from Derwent Road; The middle of the site; The far end of the site nearest Derwent Road

15/10/2017    15/10/2017    15/10/2017

Above from left: The houses nearest Stonecross Road now have windows & doors fitted; The dwellings in the centre of the site coming along; The end of the site nearest Derwent Road

26/11/2017    26/11/2017    26/11/2017    26/11/2017

Above from left: The first block of 4 houses now with door numbers; The middle of the site; The end of the site nearest Derwent Road with another block of 3 houses underway; Looking back at the row of houses

21/01/2018    21/01/2018    18/03/2018    29/04/2018

Above from left: The first plots to be completed now with driveways and the other 2 blocks are now built; The last block is up to first floor level; The block of 3-storey flats; The same block almost complete

03/06/2018    03/06/2018

Above from left: The last of the three terraces of houses complete; The flats nearing completion

02/09/2018    02/09/2018    02/09/2018    02/09/2018

Above from left: The row of houses looking towards the end of the cul-de-sac; The end block nearest Derwent Road almost complete;
The separate block to the rear of the row; Looking North-west with the separate block to the right

07/04/2019    07/04/2019

Above from left: The last section of houses from phase one now complete; The next phase of work started

The next phase of work got underway soon after completion of phase 1 at Highfield Road which was on land beyond Highfield Road between that and Derwent Road as an extension of Highfield Road.

25/04/2020    25/04/2020

Above from left: The new road in place as viewed from the end of the original Highfield Raod; The new houses taking shape

12/01/2021    12/01/2021    12/01/2021    12/01/2021

Above from left: The extension of Highfield Road with the houses now taking shape; Mid-way through the development from Derwent Road;
A little further through the development from Derwent Road; The end of the development viewed from Derwent Road

12/01/2021

Above: The area being prepared for phase 3 of the development

A new 6-foot-high metal gate was erected at the entrance to Well Court next to Mister Chips in early April of this year which was paid for by Whitby Eastside Action Group. Also in this area, Caedmon's Trod footpath was worked on with the top section receiving a new stone surface with a section of paving laid to the bottom of this at the top of the steps from Church Street.

16/04/2017    16/04/2017    16/04/2017

Above from left: The new gate at the entrance to Well Court; The new surface laid down the top section of Caedmon's Trodd; The new paving at the top of the steps from Church Street to Caedmon's Trodd

By April work was underway on converting the former Tourist Information Centre into a fish restaurant. The restaurant was opened by Whitby-born man Andrew Pern who also had restaurants in other towns. Whitby's restaurant 'Star Inn The Harbour' was opened on 15th June with invited guests sampling the menu the day before. Also in the area, white hatch markings were painted at the entrance to Endeavour Wharf to deter long vehicles from cutting the left corner and subsequently hitting the wall, although as far as I know this had never occurred.

27/04/2017    27/04/2017

Above left: Work underway at former Tourist Information Centre; Right: Hatch markings at entrance to Endeavour Wharf

17/06/2017    17/06/2017

The building transformed

Also at this time, LiDL supermarket had a new sign installed to the entrance to their car park, replacing the smaller sign installed in 2013. The new sign followed a large-scale in-store refit.

27/04/2017

Above: New sign for LiDL at entrance to their car park

Also around this time, the whole of Cliff Street was resurfaced & a few weeks later, the main hill section of Spring Hill was given the same treatment after the road surface became very cracked & uneven, especially near the top corner.

A major fire broke out in the roof space of the Magpie Cafe on Sunday evening of 30th April. The fire broke out at 10:15pm and fire fighters from all over the area battled well into the early hours of the morning to bring the blaze under control. There was damage to the roof tiles but the takeaway re-opened the next day, Bank Holiday Monday. Eight engines were involved in the operation including a turntable engine from Scarborough. However, flames could be seen coming through the roof once more at around 3:30 in the afternoon of the following day. It took 25 fire fighters around 2 hours to get the fire under control, which resulted in the roof of the 18th century building becoming badly damaged. Slight damage to the roof was also evident to the adjoining property above Truly Scrumptious. The Magpie takeaway was open for business again on 1st July with work on-going replacing the roof of the building throughout the Summer. The Magpie re-opened for business once again on 14th December after major work had been carried out internally. Floors had been ripped out due to them being waterlogged resulting in the building being reduced to a shell. The only thing that survived was the internal staircase and this was opened up to its original size during the works as well as the kitchen made more open-plan.

08/05/2017    08/05/2017

08/05/2017    08/05/2017    08/05/2017    08/05/2017

Above top: Magpie Cafe from Pier Road with the scaffold in place ready for repair work to begin;
Bottom left: The rear of the property along The Cragg showing how close the other properties are to the building; Bottom left centre: The roof the Magpie from the steps leading down to The Cragg;
Bottom right centre & Right: The roof of The Magpie from Spion Kop

05/08/2017

Above: New roof being fitted to the Magpie

A care home based at Hawsker closed its doors for the last time in late April after receiving a lot of poor media attention in recent times. Hawkesgarth Lodge closed for the final time with residents being forced to re-locate to alternative care homes. The ultimate reason behind the closure of the home was due to a shortage of nursing staff. The building was used as a lodge for the workers at the Woodhouse Mine for some time after the closure of Hawkesgarth Lodge. Incidentally, Whitby's Town & Country Care home help care services celebrated its 10th year anniversary in April of this year.

19/08/2017    19/08/2017    19/08/2017    19/08/2017

Above from left: The original part of the building facing Hawsker Church; The side of the building adjacent to Hawsker Lane; The rear of the building; The rear car park

Work to the gas supply was underway by early May at the junction of Mayfield Road & St. Andrew's Road meaning temporary traffic lights were necessary and the closure of the junction of St. Andrew's Road & Mayfield Road.

New signage was added to the top station building of Whitby's Cliff Lift after work was completed a year earlier which involved blocking up 2 windows in the roof of the building. The existing signs were also replaced with similar ones, but instead of blue lettering of white background, this was reversed with white lettering on a blue background.

08/05/2017    08/05/2017

Above: Whitby's Cliff Lift top station building has signage replaced & new signs added where the windows used to be

Pannett Park was to benefit from a new steel archway over its entrance from Union Steps thanks to James Godbold who designed & crafted the arch at his forge in Egton.

08/05/2017    08/05/2017

Above: The entrance to Pannett Park from Union Steps gets a new steel archway over the entrance

Another business to close its doors around May was Ancient Warrior, leaving its other shop open in Scarborough. The business based in Church Street opened in May 2015 selling swords and similar items after moving into the premises formerly occupied by Shepherds Purse. JK's Bar in Wellington Road was given an external facelift with a colour change to the lettering on the fascia.

21/05/2017    21/05/2017

Above left: Ancient Warrior closed down; Right: JK's Bar with its new red colour scheme

The western gate of Whitby's Swing Bridge was damaged on 10th May, after the gate hadn't locked in place properly when the bridge was opening to river traffic. When the road moved the railings on the road side caught the gate and jammed, causing the damage to the gate and also to a section of fencing on the bridge itself. The section of fence ended up in the harbour and had to be retrieved and the gate, dating from the 1960's had to be taken away for repairs. The bridge couldn't be opened to harbour traffic the following day until a temporary gate was brought in. This happened during the afternoon of the 11th so the bridge was then back to normal operation. The gate was not reinstated until 14th May 2018, just over a year later!

21/05/2017    20/05/2018

Above from left: The temporary gate on the Swing Bridge showing the missing section of fence behind; The gate re-instated

Also in May, work was undertaken by Scarborough Borough Council placing flower beds at the junction of Mayfield Road & Prospect Hill on the wide pavement area to the South-west of the junction. A 'Slow' warning was also painted on the road about 10 metres from the New Bridge approach in the left-hand lane. Also around this time, work had started on converting the interior of the former Home & lifestyle shop which closed a few weeks earlier into a hair salon, run by Amber Natriss. The salon, Love Hair, Love Beauty was officially opened on 22nd July 2017.

08/05/2017    05/08/2017

Above left: Home & Lifestyle shop in its former location at 1 John Street closed; Right: Love Hair Love Beauty

Work had been on-going for a number of weeks creating a larger private parking space off the old Spital Bridge road which saw the old stones from the wall moved & placed to mark the edge of the parking area. A new garage was also built with separate storage/study space on empty land at Captain Cooks Crescent next to the former garages.

08/06/2017    25/02/2018    08/06/2017

Above left: Parking space made larger & stones from old Spital Bridge re-aligned to make parking space; Centre: Parking space complete; Right: New garage built next to old garages at Captain Cooks Crescent

A refurbishment scheme was complete by Summer of this year at The Ship Inn at Marine Parade. External alterations were carried out which was followed by a complete overhaul on the inside.

02/07/2017    02/07/2017

Above left: The Ship Inn from Marine Parade before alterations to the ground floor window were carried out; Right: The Marine Parade facade after work

Bobbins wool & haberdashery shop in Skinner Street closed its doors for the final time at the end of June after moving premises from Church Street in March 2015. The building was to remain empty for sometime after Shane the tattooist moved out of the upstairs rooms sometime later too, when he opened a tattoo shop in Wellington Road. The building was to become Jet Black Jewel hotel in late 2019. The owner of Judith's Fabrics of Brunswick Street took a well-deserved retirement after setting up the business some 51 years ago. The business was re-named as Whitby Crafts after being taken over by Michelle, taking over the shop in July. During the changeover, someone thought they'd show Judith their gratitude to her by removing the "ics" off the end of Fabrics from the shop front, leaving "Judith's Fab", as pictured below. Across the bridge to the East side, at around the same time a second branch of Ramsdens was opening in Whitby, this time at the old part of Church Street with residents up in arms over the decision to let the business move into the street, lined with antique shops & Jet shops - not the best place to put a 'bookies'.

02/07/2017    10/11/2019    20/07/2017    02/07/2017

Above from left: Bobbins, Skinner Street closes down; Jet Black Jewel almost ready for opening;  Judith's Fabrics in the middle of its handover period to Michelle of Whitby Crafts; Ramsdens opens in Church Street

Work started on the evening of 1st July at the corner of Church Street & Bridge Street to restore electricity & gas supplies after what was described as a gas explosion had occurred underground. The teams worked through the night and into the next day to sort the problem.

Nearby, Great Reads Whitby book store at 95 Church Street opened in July after Ancient Warrior vacated the premises. Little Readers, its Sister store opened across the road at 146 Church Street, which was previously Whitby Book Clearance & previous to this it was Publishers Book Clearance.. This store changed names in April 2019 to Books For Less.

30/06/2019

Great Reads, Whitby opens at 95 Church Street, formerly The Ancient Warrier

The site office for the on-going housing development at Larpool was demolished and replaced by 2 houses around July with the building of the houses continuing into September. By this time the whole of Wagtail Crescent was almost complete, the first section to the East was complete very early in the development about October 2014. Work on a new play park for the area was started around October 2017 but this was opened and taken away again due to some health and safety issues. The equipment was re-installed in Spring 2018, hopefully this time to stay for good.

20/07/2017    26/08/2017

Above left: The site of the site office during demolition; Right: The site office being replaced by plots126 & 127

26/08/2017    26/08/2017    26/08/2017    26/08/2017

From left: The West entrance into Wagtail Crescent - plots 73-75 almost complete; The front of plot 73;
The back section of Wagtail Crescent showing plot 70 behind the car with plots 71, 72 & 84 to the right & plot 88 in the top corner;
Looking back down from the top along the back section of Wagtail Crescent showing plots 72 & 71 with plot 84 in the foreground

05/11/2017    15/04/2018

Above from left: The first play equipment in place soon to be removed; The equipment re-instated in Spring 2018

Whitby RNLI's new inshore lifeboat was officially named in July as Warter Priory after the Warter Priory Estate in East Yorkshire nominated the RNLI as their chosen charity for the year. They raised enough money to pay for three class D inshore lifeboats with the other 2 being located elsewhere around the coastline.

Highways work was taking place on Upgang Lane in late July. A single yellow line prohibiting parking was marked from Rose Avenue to West Cliff Avenue & on the other side of the road double yellow lines were marked West of Ocean Road. A direction sign was also added to the top of Downdinner Hill regarding the junction ahead.

Sometime at the beginning of August Siggy's Fish Shop at Angel Yard was taken over & re-named Angel Fisheries. At a similar time, Stonehouse Emporium at 1 Skinner Street, selling vintage items closed its doors for the final time. The business also had two apartments above. A new cafe moved into the premises, Mademoiselle's, opening for the first time on 7th November.

26/08/2017    17/09/2017    26/11/2017

Above left: Angel Fisheries in the former Siggy's Fish Shop premises; Centre: Stonehouse Emporium just after having its fascia signage removed; Right: Mademoiselle's Cafe open

On 20th August Arriva buses who operated the services to Sleights & Eskdale were to change routes with the 94 Eskdale service effectively scrapped, but being covered by the 95 Sleights running a different route, which would also cover Sainsbury's, as that route, which was previously free, was also scrapped. The company announced that timetables would remain the mostly the same. The change also saw the Church Street area no longer covered by the service.

    05/08/2017    05/08/2017    05/08/2017

Above from left: The single yellow line on the right side of the road looking towards Rose Avenue; The double yellow lines with Ocean Road to the right; New direction signage added to the top of Downdinner Hill

Work was started at the end of August at the junction of Windsor Terrace & North Road to allow aging gas pipes to be replaced with plastic ones. This resulted in a road closure was necessary from the point at the foot of North Road towards the junction with the lower part of Windsor Terrace. This meant that the only way to exit the Fishburn Park estate was via Waterstead Lane, due to the top part of Spring Hill being one-way. This work was followed by the closure of Waterstead Lane due to similar work taking place.

The pedestrian crossing at the foot of Helredale Road was upgraded which saw new traffic lights installed during work which required temporary traffic lights to be in operation for a number of days. This was followed with similar work taking place at the pedestrian crossing on Coach Road in Sleights.

Sugar Shack, selling sweet treats & drinks, based at Silver Street changed its name to 'The Shack' sometime around this time.

07/10/2017

Above: Sugar Shack simplifies its name to 'The Shack'

Moving North to Staithes, Staithes Athletic FC & social club unveiled its refurbished changing facilities which were made possible thanks to a grant of £25,725 from the Premier League through the Football Stadia Improvement Fund which went a long way towards the £37,725 cost of the project. £6,000 was raised by members of the Staithes Sport Association & £3,000 came from the Normanby Charitable Trust. The changes meant the ground met the criteria for step 7 of the F.A Ground Grading requirements, which the club currently competes at. The improved facilities were officially opened by club vice-chairman Paul Conway on 16th September which meant the pavilion now offered separate home & away changing facilities as well as two officials' changing rooms & a versatile open area with two store rooms. The club completes in the North Riding Football League.

Also around this time, a Whitby bookshop 'Endeavour Books' of Grape Lane closed its doors for the last time before re-opening as 'Collectors Den'.

24/09/2017

Above: Collectors Den moves into premises previously occupied by Endeavour Books

Work took place towards the end of September at Whitby's Eastside Community Centre which saw the small children's play area replaced, footpaths altered & replaced & a new fence erected around the tennis courts. The work came after the park area was divided away from the Eastside Centre & re-named Eastside Park and was complete by Deember.

24/09/2017    24/09/2017    24/09/2017    24/09/2017

Above from left: Creation of a new footpath underway; The tennis court perimeter fence removed; Small children's play area removed; Section of existing footpath removed

07/10/2017    07/10/2017    07/10/2017    07/10/2017

Above: The whole area is fenced off looking towards St. Peter's Road; The former paved footpath removed; The parking area; The tennis courts

29/10/2017    29/10/2017    29/10/2017    29/10/2017 

Above left to bottom right: Entrance from Abbot's Road; New fencing round the tennis courts; New path laid looking towards St. Peter's Road;
New excercise equipment installed near to where former swings & see-saw was; New play equipment for younger kids installed; New pathway laid towards tennis courts with benches

      29/10/2017    29/10/2017    29/10/2017

19/11/2017    19/11/2017    19/11/2017

Top left to bottom right: The entrance to the centre with tennis courts to the left; Surface laid on parking area; The parking area; The larger play area now turfed with bins & lighting; The smaller play equipment in place

19/11/2017    19/11/2017

31/12/2017    31/12/2017

Above from left: The newly-developed site looking towards Abbot's Road; The new children's play area

Work which involved replacing broken railings along the edge of the riverside footpath underneath the viaduct was undertaken around the beginning of October. New metal railings were put in place making the route safe for walkers once again.

Argos arrived in Whitby's Sainsbury's store with an official opening of 27th September. This meant that products would be ready for immediate collection from the store as well as offering a full click & collect service. Exterior signage was also installed.

07/10/2017

Above: Sainsbury's Whitby now offering Argos

Work was on-going at the rear of Broomfield Terrace preparing the land on the bank side for houses after a derelict house was removed along with various trees. A 10-foot trench was dug into the flat land at the bottom of the bank next to the road of Broomfield Terrace. Planning permission was first sought as early as 2002 for a residential development to be housed on the site of the previous Bagdale Garage. The derelict building suffered fire damage in 2007 but the building was already in a derelict state. Here's a look at what the new development, Spa Well Court, will look like once finished.

23/06/2013    07/10/2017    07/10/2017    07/10/2017

Above left to below right: Derelict building before being demolished at the town end of the site; Looking across the site towards the new flats; The town side of the site looking towards Meadowfields Court;
Towards the rear of the site below Meadowfields Court nearest town;
The large hole excavated looking towards town; Looking into the large trench; The large trench looking away from town

07/10/2017    07/10/2017    07/10/2017

19/11/2017    19/11/2017    19/11/2017  

Above left: Temporary steps erected to access the neighbouring house to the left of the site; Centre & Right: Looking up towards Meadowfields Court through the middle of the site

31/12/2017    31/12/2017

Above from left: The large scale of the site; Large wall built at the top of the site below Meadowfields Court

The work seemed to be at a standstill for a number of months. Below are some photos from November 2018, a crane had arrived on-site.

04/11/2018    04/11/2018    04/11/2018

Above from left: Hardcore down; The base of the crane; The huge crane towers above

Below left & left centre: From near Bagdale sub-station looking across the site; Right centre & Right: Similar viewpoints taken 2 months later

19/11/2017    19/11/2017       

Work really started to take shape in early 2019 after all the initial ground works & excavations had been carried out.

28/04/2019    28/04/2019    28/04/2019    28/04/2019

Above from left: Steel for another structure in place; A block of properties towards the back of the site; Another block of properties towards the back of the site; The first block to near completion

30/06/2019    30/06/2019    30/06/2019

Above from left: The eastern end of the site; The main building nearest the road taking shape; The western end of the site

The development was taking shape by Spring 2020, as seen below.

25/04/2020    25/04/2020    25/04/2020    25/04/2020

Above from left: New houses complete with white render; The building nearest the road of Broomfield Terrace;
A view along Broomfield terrace with the new buildings on the right; The larger building set back from the road

The development was completed during 2020, as seen below.

10/11/2020    10/11/2020    10/11/2020    10/11/2020

Above from left: Looking up to the development; Along the front of the development; Around the back of the front part of the development; The flats along the front of the development

10/11/2020    10/11/2020    10/11/2020

Above from left: Looking up towards the very top of the development; The rear gardens of the top houses of the development; From the top of the development looking down towards Bagdale

Meanwhile, nearby land at Spring Hill was being developed, formerly occupied by Mr. Bee's Dental Practise and used as a car park. The land which was sloping was made into flat, stepped terraces where a terrace of 3 houses would be built & was once the home of the town's police station before the present one was built in the 1960's.

07/10/2017    07/10/2017

Above: The land from Spring Hill; The land from below showing the stepped terraces

1 month on - drainage going in

19/11/2017    19/11/2017

Above: Drainage going in

31/12/2017    31/12/2017

Above from left: The site looking up towards the telephone exchange; Block work started looking towards Spring Hill

   

Above from left: From Spring Hill looking across the site; From in front of Princess Place showing the block work for some of the houses

18/03/2018    18/03/2018    18/03/2018

Above from left: The front of the houses from Spring Hill; The lower side of the houses; The rear of the houses looking towards Spring Hill

24/04/2018    24/04/2018

Above from left: Progress made looking from Spring Hill; The view from Princess Place with the roof of the top dwelling in place

20/05/2018    20/05/2018

Above from left: Building work coming along nicely as viewed from the corner of Spring Hill & the rear of Victoria Square; The houses up to roof level as viewed from Spring Hill

25/06/2018    25/06/2018    25/06/2018

Above from left: The houses from the bottom of the site from Victoria Place; The houses from the front; The houses from Princess Place

02/09/2018    02/09/2018

Above from left: The houses from the bttom & rear; The houses from the front from Princess Place with just the area outside the front needing attention

10/02/2019    10/02/2019

Above from left: Houses almost complete by February 2019 as seen from the front; From the rear

07/04/2019    07/04/2019    07/04/2019

Above from left: The houses from Spring Hill now complete; The front of the houses from Princess Place; The rear of the houses from Princess Place

Building work for a 2-storey house was started around this time just inside the private driveway to Airy Hill Manor behind the wall near the Propsect Hill traffic lights. The house was built from sandstone and even boasted a real fire with chimney! The house was complete for early 2019 with steel gates erected to the entrance road.

    05/11/2017    05/11/2017

Above from left: Building work started as viewed from just inside the entrance to Airy Hill Manor; Looking towards Waterstead Lane

31/12/2017    31/12/2017

Above from left: The house as viewed from the entrance to Airy Hill Manor driveway; The house from the back looking towards Waterstead Lane

18/03/2018     18/03/2018

Above from left: The house as seen from the entrance to Airy Hill Manor driveway; The house from the rear looking towards Waterstead Lane

24/04/2018    24/04/2018

Above from left: The completed building from the entrance to Airy Hill Manor Drive; The building from the rear looking towards Waterstead Lane

30/06/2019    30/06/2019

Above from left: House complete with gates to the entrance

Work was underway by the end of Summer at Endeavour Wharf which would see steel pilings replaced in work costing £420,000. 75% of the funding for the work came from the European Fisheries Funding with the remaining coming from the council's harbour reserves. 180 metres of the 375-metre section would see the steel pilings replaced by December 2017.

29/10/2017

Above: Work began

An interactive tourist information board was installed at Dock End sometime in October but wasn't put into use until December - the start of the main tourist season... for Santas! Just across the road in front of the railway station, a bench was unveiled in the first week of November with its location being chosen by Whitby Town Council.

05/11/2017    05/11/2017

Above from left: Interactive tourist information board; New bench

Work lasting a proposed 19 weeks, but was actually much longer, was started at Sleights bridge in mid-October which involved removing the top horizontal rail from the railings of the bridge at both sides and wrapping the bridge with scaffold which went underneath the roadway. This was to allow the bridge to be treated to maximise its lifespan. This meant 3-way traffic lights were necessary for the duration of the works at the junction of The Carrs. The work was complete by May when new owners of nearby Salmon Leap decided to fell a lot of trees on their land, next to the bridge.

20/11/2017    20/11/2017    20/11/2017

Above from left: Sleights bridge from West to East; The railings with the top rail removed, showing the northern side of the bridge looking East; The hole is where the top horizontal rail used to join the pillar

            09/06/2018

Above from left: Sleights bridge surrounded by scaffold; The East side of the bridge; Work complete; Trees felled nearby in other works at the Salmon Leap

Also around this time, work lasting 1 day took place on the upward side of Downdinner Hill to re-surface the road to smoothen out a bump in the surface. Elsewhere in town, Stakesby Road received some much needed T.L.C. when it was re-surfaced from the junction of White Ley’s Road to the point where it becomes Spring Vale. The road had been covered in small holes and bumps for years & resulted in a road closure through the daytime hours for 2 days. Similar work was carried out at Love Lane from White Ley's Road up to & including the mini-roundabout at White Point. The road was closed for a number of days while the work was carried out with 3-way temporary traffic lights required at White Point Bridge.

Victorian Image on Sandgate closed its shutters for the last time on Sunday 19th November as owner Paul Wilson wanted to pursue photography more after running the business since 2000. The shop had been a part of Sandgate since 1980 and was to be converted to a retail premises. A new business 'Furbellow & Co' opened in its place in early 2018 selling gentleman's clothing.

26/11/2017    08/04/2018

Above from left: Victorian Image, 11 Sandgate closed after 37 years; Furbellow opens early 2018

Work started around November at Aelfleda Terrace, which would see the 3 cottages demolished after a landslip in November 2012 sent the gardens of the cottages down the cliff a few feet. After assessing the cottages it was decided they were no longer safe and the only option was to demolish them. It was revealed around a year later though that in fact the ground on which the cottages stood was solid and the 151-year-old cottages were demolished for no reason at all.

 26/11/2017

Above: Work started at Aelfleda Terrace

Work was started during the latter part of the year on constructing a retaining wall along a stretch of Church Street as a form of flood defence. In September 2017 a notice was put up along Church Street asking for Lobster Pots to be moved by 30th September. Work was put on hold though whilst other work nearby was undertaken with the town's sewer system. This work was then finally started when part of Church Street was made 'no parking' in June 2019. The 2 small brick buildings near The Fleece were demolished & re-built during the works.

17/09/2017    17/09/2017    17/09/2017    30/06/2019

Above from left; Looking South just south of The Fleece; Looking South a little further along Church Street;
Notice placed on Church Street warning of the work & for lobster pots to be moved; Part of Church Street made 'no parking' in June 2019

10/11/2020    10/11/2020

Above from left: The flood defence wall complete; The 2 small buildings re-built

Towards the end of 2017, planning permission was granted to Aldi & Marks & Spencer to build 2 stores on land just off Fairfield Way, formerly occupied by Sky Scaffolding & the disused offices of Eves. These would be demolished to make way for the Aldi store & M & S Food Hall but a new home had to be found by Sky Scaffolding which saw the company move to a unit and compound further down Fairfield Way. Work first started on the new compound in February 2014 but was halted for some reason before restarting again in June 2017. The company moved in to their new home in December 2017. Sky Scaffolding moved into a new unit near to the new compound. M & S pulled out of the move in early 2019, and the at the time unfinished unit was put up for lease.

23/02/2014    23/02/2014

Above from left: Preparatory work in February 2014 at the site of what will be Sky Scaffolding's new compound

17/06/2017    17/06/2017    07/10/2017

Above left & Centre: Work resumes in June 2017; Right: The compound ready - October 2017

17/06/2017    31/12/2017    31/12/2017

Above from left: Sky Scaffolding at their old home; Sky Scaffolding's new home; Right: Sky Scaffolding's new compound

    31/12/2017    17/06/2017    17/06/2017    17/06/2017

Above from left: Sky Scaffolding's old home; Eve's former offices set to be demolished viewed from the rear; Eve's former offices from opposite Homebase; Eve's former offices from the entrance road to Homebase

 The site of the former Eve's offices & Sky Scaffolding premises was cordoned off in April 2018 & actual demolition work started around the second week in May. The first unit to vanish was the steel shed unit nearest Homebase, taking only a couple of days to remove it.

06/05/2018    06/05/2018    06/05/2018

Above from left: Demolition work begun on the metal-framed building; The site looking towards the side of Homebase; Demolition work began at Sky Scaffolding's former premises

13/05/2018    13/05/2018    13/05/2018

Above from left: Demolition in progress with the metal shed unit completely gone; A view from Fairfield Way towards the side of Homebase; Demolition work started on Sky Scaffolding's former premises

Frame-work soon appeared on site after initial ground works were completed.

20/05/2018    20/05/2018    28/07/2018

Above from left: The space to the left of what was Sky Scaffolding with Eves' former offices still standing to the left; The site of the former premises of Sky Scaffolding, reduced to rubble within the last week;
The framework for the new Aldi store is taking shape

A second frame-work was started nearer to Fairfield Way, presumably for M & S. By the new year of 2019, a car park sign for Aldi was in place and the units were basically built.

18/08/2018    18/08/2018

Above from left: Aldi store frame-work taking shape as seen from the main road; A second frame-work started possibly for the new M & S store as viewed from Fairfield Way

25/11/2018    25/11/2018

Above from left: The front of the buildings from Stainsacre Lane; The rear access to the buildings from Fairfield Way

13/01/2019    13/01/2019    13/01/2019

Above from left: The front of the site - taking shape; The side of the site from Fairfield Way; Looking along the rear of the site from Fairfield Way

30/06/2019

Above: Aldi open and empty unit next door

The end of 2017 saw the closure of a couple of long-established Whitby businesses, the first being Whitby Woodworkers on Grape Lane which had been run by the Rowell family for many years and the current owner was due to retire. This shop stood empty until 2019. The second being Cabin Cafe on Langborne Road, which had been running since long before the days of the Co-op supermarket over the road. In fact, the cafe had to re-locate to its home of almost 27 years after its previous home was to be demolished to make way for the supermarket development in 1991. Also at the end of this year, The Hair Studio at 8 The Parade was taking over & re-named Fergi's Unisex Salon.

31/01/2018   

Above from left: Whitby Woodworkers' former premises;

31/12/2017    31/01/2018    31/01/2018

Cabin Cafe closed with fascia boarding removed; Endeavour Cafe opens in former Cabin Cafe premises; Fergi's Salon opens at 8 The Parade